怎么做应力应变曲线_端子设计与应力分析
关注****线束↑** ,让我们一起进步!**
电子连接器的基本要求
-
维持稳定且足够的正向力
-
破坏表面的薄膜
-
移除掉污染物
-
减少或去除微振动滑擦
-
防止污染物的侵入
-
维持端子电镀层的完整性
正向力设计
-
产品的可靠性
-
接触电阻有密切
-
mating/un-mating force
-
瞬断问题
-
电镀层之耐磨耗性
端子正向力要求
-
镀金端子正向力:80-100g
-
SIM Card/SD用端子:20g-50g
-
镀锡铅端子正向力必须大于150g
正向力与接触电阻关系

端子应力设计基础

端子设计要求

Forming and blanking 端子

最大应力设计
最大应力 FEM分析所得的最大应力含应力集中效应,通常会大于 nominal stress,因此应排除应力集中效应。 高应力设计的趋势:Connector 小型化的趋势,使端子最大应力已大于材料强度,如何在临界应力下设计端子是重要课题。 临界应力的设计应以理论应力值为基础来设计,所考虑的因素包括:位移量,理论应力,永久变形量,反复插拔次数。
常用压力单位换算表

压力单位换算范例:
铍铜 290TM-04 抗拉强度为 98 Kgf/mm²,可换算为多少MPa? 98 Kgf/mm² = 9800 Kgf/cm² 又 1 Kgf/cm² = 0.0980665 MPa(由换算表得知) 98 Kgf/mm² = 9800 Kgf/cm² = 961.052 MPa
应力-应变关系

降伏强度
开始塑性变形的应力水平或发生降伏现象由开始偏离应力——应变曲线线性部分来决定。此点有时称为比例限,此直线和应力——变曲线之塑性区的交界点所对应的应力定义成降伏强度。
拉伸强度
降伏后金属连续塑性变形的应力必须增加直到最大值,然后降低使材料断裂。拉伸强度TS是位于工程应力曲线最高点的应力。此点相当于结构于拉伸下可承受的最大应力,若此施加并维持此应力将会导致破裂。 在此点之前拉伸试片内的所有变形均是均匀的,但在此最大应力时,在某些点开始形成颈缩,且随后的变形会局限在此颈缩区,此种现象称为颈缩,最后断裂发生在此颈缩区。
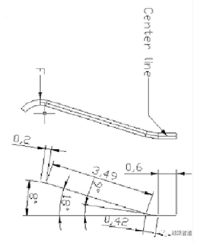
端子简化
端子简化为线段 实例说明: 
Excel试算表应力分析

试算表注意事项
-
对于 FORMING TYPE 端子较准确
-
端子线段几何输入由受力点开始
-
线段细分越小,分析结果越准确
-
在最后一个端子结构尺寸输入后,其后的所有的线段长度、角度必须输入“0”,截面长、宽须输入“1”
-
输入正向力值(N),使其位移量近似我们所设定的数值
端子应力分析
-
有限元素法
-
应力分析运用于电子连接器产业
-
端子正向力分析
-
端子最大应力分析
-
金属件(如latch)最大应力分析
-
塑胶件裂痕分析
Ansys 应力分析软体介绍
ANSYS 主要执行步骤:
-
Preprocessor——建模型、切网格
-
Solver——设立边界条件、施力情况
-
Postprocessor——显示结果
Preprocessor

Preprocessor——mesh

Solver

Solver——Boundary Condition

Postprocessor——看结果

Postprocessor

应力分析实例示范

IGES 格式转出 Autocad/Pro E

IGES 格式转入 ansys

选取 IGES 档

转入 ansys 前处理

将 Line 建成 Area

选择 element type ——2D

选择 plane stress with thickness

输入 real constant

输入材料特性

切网格

完成网格

设定边界条件

设定自由度

设定位移量

设定位移量大小

开始运算

进入后处理

Plot Results——Element Solution

应力分析结果

正向力分析结果

往期精彩回顾
十多年经验总结:线束工厂工装架设计指导 一个不良品的成本是多少? 汽车线束导线长度自动计算方法 端子压接基础培训(最新) 招得来,留得住!一位生产主管的留人绝招 汽车线束端子压接压缩比浅读 端子压接不良现象与标准 端子压接质量目视检验标准 计时、计件薪酬模式哪个好?

动手点个“在看”吧! 
