数据中心冷却系统解决方案技术研究
概要
本期我们的重点是数据中心冷却系统解决方案。

整体解决方案
1.具有整体点浴式冷却的混合浸入式冷却服务器
2.液冷计算机系统的热缓存
3.模块化高密度计算机系统
系统方案说明
1.具有整体点浴式冷却的混合浸入式冷却服务器

提供了一种用于冷却容纳在计算环境中的电子部件的浸没冷却设备和方法。这些部件分为初级和次级发热部件,并被容纳在液体密封的外壳中。主要发热部件通过由至少一个具有翅片的冷板提供的间接液体冷却来冷却。冷板连接到第一冷却剂导管,该第一冷却剂导管使第一冷却剂在外壳中循环并供应冷板。
通过第二冷却剂为二次发热部件提供浸没冷却,该第二冷却剂将被布置在外壳内部,以使冷板和第一冷却剂导管部分浸没为与发热部件一样膨胀。
通过提供一种用于冷却容纳在计算环境中的电子部件的方法和相关联的混合浸没冷却设备,克服了现有技术的缺点,并提供了额外的优点。这些部件分为一次和二次发热部件,并装在液密外壳中。主要发热部件通过由至少一个具有翅片的冷板提供的间接液体冷却来冷却。
冷板连接到第一冷却剂导管,该第一冷却剂导管使第一冷却剂在外壳中循环并供应冷板。通过第二冷却剂为次级发热部件提供浸没或直接液体冷却,所述第二冷却剂将设置在外壳内部,以部分浸没冷板和第一冷却剂导管以及发热部件。
在一个实例中,水冷板和冷却剂导管各自包括用于将热量从第二冷却剂传递到第一冷却剂的延伸外表面。在一个实例中,第二冷却剂经由自由对流或自由对流和沸腾的组合来冷却电子器件,而替代实例提供辅助循环的子合并泵。在另一个实例中,电子器件被容纳在电子器件板上,该电子器件板倾斜一定角度也有助于第二冷却剂的循环。
2.液冷计算机系统的热缓存

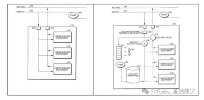
涉及在给定的电子元件机架内补充液体冷却路径,以便在主冷却系统故障的情况下可能发生损坏或数据丢失之前降低关键元件的温升。液冷机架通常具有管道和包含一定体积的液体或蒸汽的热交换器,该液体或蒸汽不断被数据中心泵系统取代。
上图用于减轻数据中心的液体冷却系统的故障的系统的一个实例。给出了用于液冷计算机系统中的热缓存的系统的一个实施例的高级框图。在正常情况下,冷却液被输送到机架壳体,通过数据中心液体冷却系统供应和返回线路的多个液体冷却部件。供应管路和回流管路通过快速断开连接至机架,并泵送冷却液通过一个或多个数据中心泵穿过导管。
在机架内建立了与数据中心冷却回路流体连通的二次冷却回路。进入机架后,数据中心供应线进入监控设备。在本实例中,该装置监测流体流量、压力和/或温度。流体的其他特性也可用于识别施加在供应线上的数据中心冷却系统的故障。此后,在允许冷却剂接近容纳在机架内的任何电子部件之前,在进入岩石的供应盖上放置单向阀。该阀允许流体从数据中心冷却供应管线进入机架,但如果流体停止流动和/或出现不利的压力梯度,则防止流体向供应管线回流。
同样,冷却液回油管上也安装了一个二通阀,用于将加热的冷却液从电子部件返回到数据中心冷却液回管。二通阀与监测装置连通,并且能够接收指示主或数据中心液体冷却系统中的故障的信号。
在接收到来自监测装置的这种信号时,二通阀以电方式或液压方式关闭,并将返回的冷却剂从电子装置分流到补充或辅助液体冷却回路。
此后,机架独立于数据中心液体冷却系统运行。
3.模块化高密度计算机系统

模块化高密度计算机系统具有基础结构,该基础结构包括形成多个机架的框架部件并且具有一个或多个冷却部件。该计算机系统还具有一个或多个计算组件,该计算组件包括机架组件和安装在机架组件。一个或多个计算组件中的每一个被组装并与基础设施分开地运送到安装地点,然后在基础设施被安装在该地点之后被安装在多个隔间中的一个隔间内。
一个面向房间的冷却基础设施就足以解决这个冷却问题。这样的基础设施通常由一个或多个大型空调机组组成,这些机组设计用于将房间冷却到某个平均温度。这种类型的冷却基础设施是基于这样一种假设发展起来的,即计算机设备相对同质,并且每个机架的功率密度约为1-2千瓦。
然而,上面提到的高密度机架可以在每个机架20千瓦及以上的数量级上。这种功率密度的增加,以及设备可能非常异质的事实,导致了热点的产生,这些热点不再能够用简单的面向房间的冷却系统进行充分冷却。
通过将高密度计算机系统的计算组件与必要的冷却、功率分配、数据I/O分配和外壳基础设施组件分离,本发明的实例可以实现相对于这种计算机系统的当前配置的显著优点。计算组件可以进行组装和测试,以确保正确操作,而基础设施组件在计算组件之前单独装运。
小结
因此,可以交付基础设施冷却组件、数据和配电组件以及框架组件,并且在接收测试的计算组件之前更容易地完成其耗时的安装。
此外,计算组件与基础设施组件分开运输实现了组件的交付和处理不那么费力和成本更低。最后,它使数据中心更容易升级或向当前安装添加额外的基础结构和基础结构组件。
